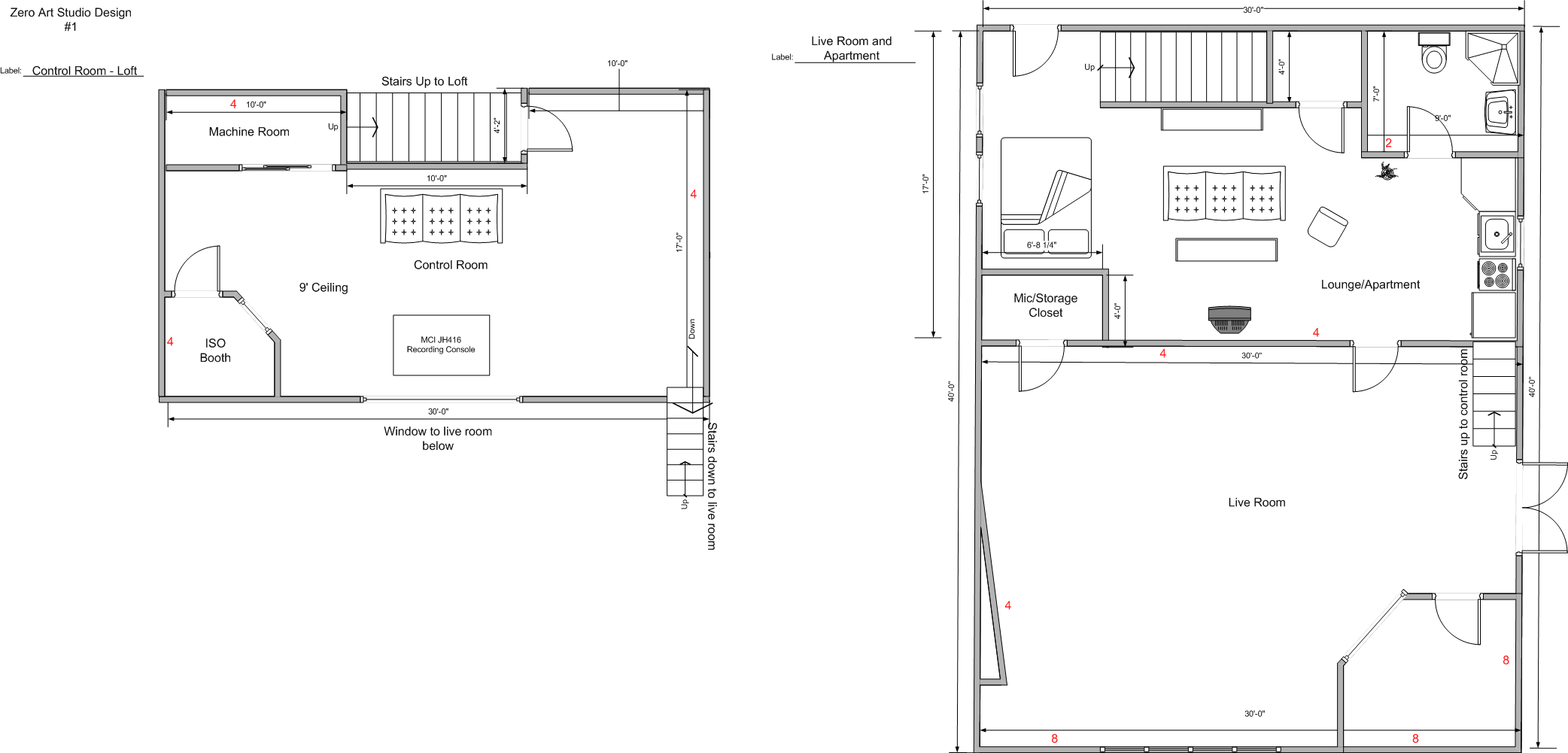
I believe Amy and I are really close to being able to start working on the new studio. I’ve gone through tons of iterations of the studio design and I’m ready to add another. this one has a loft space that would contain the control room, which would look out over the live room. a lounge/apartment would be downstairs below the control room/loft. What do you think?

Proposed Zero Art Studio Design Layout