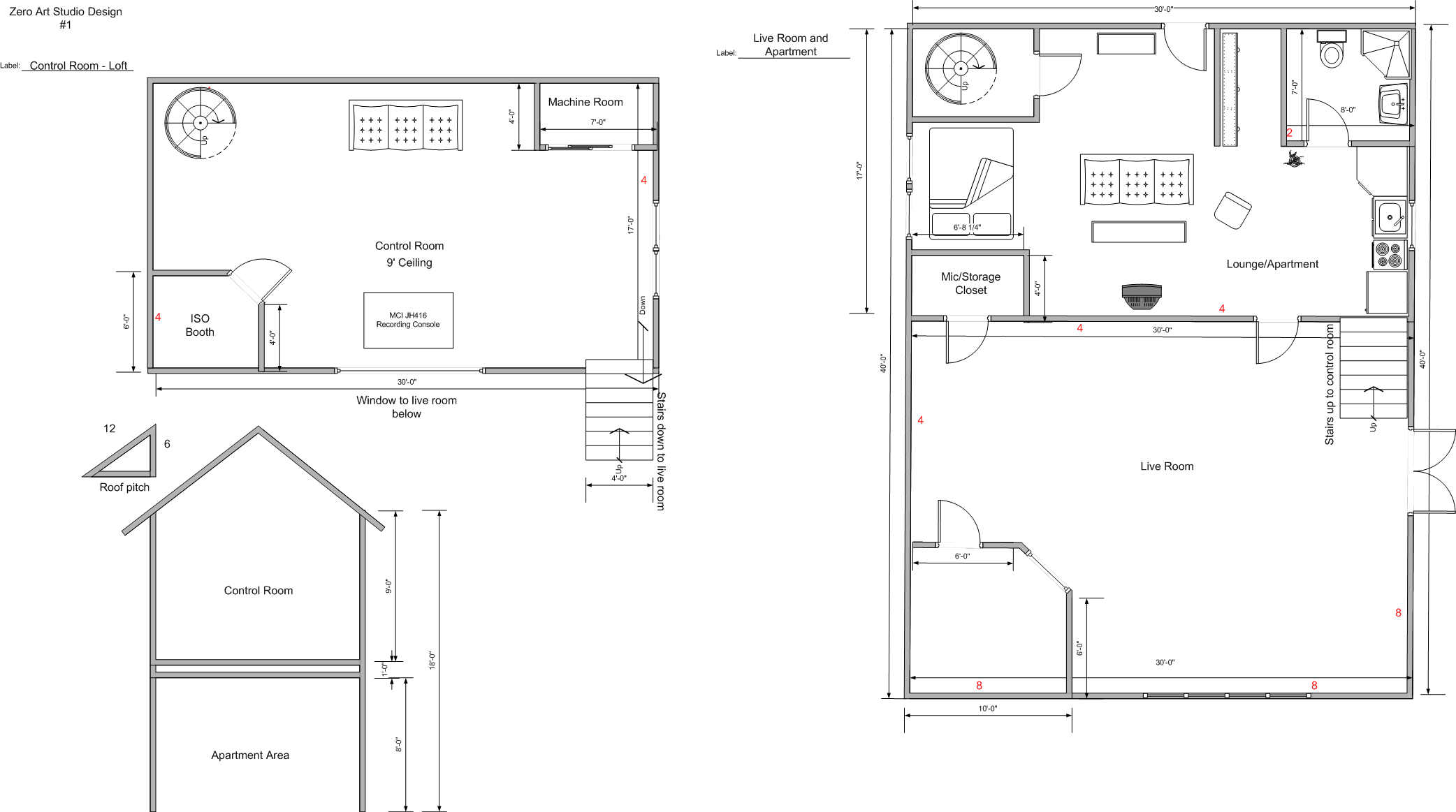
Well, I think this is the final floor plan that will be built starting around the first of the year. I’m still waiting on a few quotes for different parts of the construction, but I have a decent idea of what it will all cost. As you can see, I’ve changed the layout of the staircase and substituted a spiral staircase for the wide staircase at the rear of the control room. This provides 4 extra feet of space directly behind the console. You can see the previous design here.
The new (final) design:

Final Zero Art Studio Floor Plan